SIGN UP CUSTOMER LOGIN
Main Photo

2 Total Photos [Click to View All]

Main Photo
Main Photo

3820 N Damen Avenue, Unit 3 Chicago, IL 60618

$1,195,000
Active / MLS# 12608136 / Residential - Condominium / Chicago
3 Beds
2 Baths
1 Half Bath
1720 SqFt

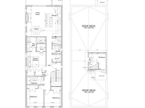
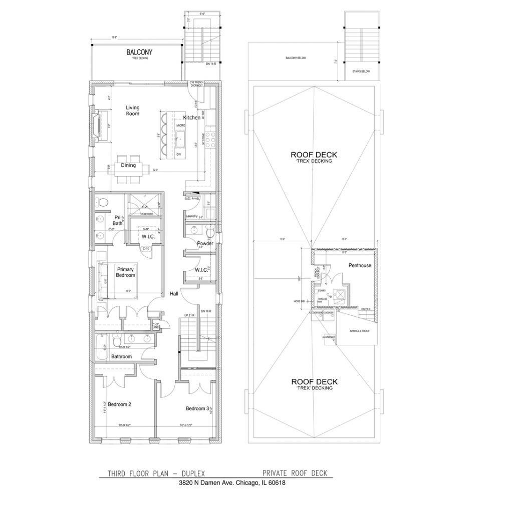
Luxury New Construction Top Floor condo on an oversize 30' wide lot in the desirable neighborhood of North Center and Bell school district set for delivery in June 2026. Brand new 4-unit development built by long standing home builder Strand Partners LLC. Masonry and limestone building with extra-wide luxury condos along with a masonry 3-car garage and Coach House. This high-end home with a timeless facade boasts premier finishes and quality throughout consisting of 3 bedrooms with 2.5 baths a private rooftop deck, penthouse and abundant natural light. Top-of-the-line finishes throughout include custom chef's kitchen featuring eat-in island, custom cabinetry, Thermador professional appliances, natural stone countertops, white oak hardwood floors, and tiled backsplash. Upscale trim includes 8' double panel solid doors with Emtek hardware, 7 base, 3.25 casing, and Kohler kitchen and bath fixtures. Separate Dining Room and bright and spacious Great Room with gas fireplace and stone mantle open to private outdoor space. Designer baths with detailed tile work, primary suite with steam shower, double vanity, and heated floor. Walk-in laundry with full size W/D, separate mechanical room, separate storage room, spacious bedrooms with generous built-out closet space, 10' ceilings, and abundant natural light. Extra insulation and sound proofing between floors, bathrooms and laundry. Weathershield casement and awning windows, a private rooftop deck on entire roof, with Penthhouse wet bar and custom cabinet. With its prime location, you'll enjoy the convenience of being just steps away from all the vibrant shops and award-winning restaurants that Roscoe Village and North Center have to offer including easy access to public transportation, along with the highly regarded Bell school district. If you are looking for extra living quarters there is a spacious one-bedroom coach house listed separately, which would make a great nanny, in-law, or office. Shown by appointment.

Read More » Read Less »

Baird & Warner Nicole Boston Agent Cell: 847.878.0235 Email

Mortgage Calculator

%
years/fixed
yearly
yearly (est.)
yearly
(Payments are an estimate and may vary by lender)

Estimated Payment

$ 3,252.10 per month $2,655.56 Principal & Interest $0.00 Property Tax (data not provided by mls) $348.54 Homeowner's Insurance $248 HOA Fee
Get your competitive financing options.

Property Details

Property Type: Residential - Condominium
Basement: None
Cooling: Central Air
Fireplaces: 1
Garage: 1
Heating: Natural Gas, Forced Air, Radiant, Radiant Floor
Lot Size: Common
Stories: 3.0
Year Built: 2026

Amenities

Wet Bar
Storage
Walk-In Closet(s)
High Ceilings

Feature Descriptions

Additional rooms: Bonus Room, Walk In Closet, Deck
Appliances: Range, Microwave, Dishwasher, High End Refrigerator
Association Includes: Water, Insurance, Other
Bath Features: Separate Shower, Steam Shower, Double Sink, Soaking Tub
Exterior: Brick, Stone
Fireplace: Gas Log
Fireplace Location(s): Living Room
HOA Fee: 248/ Monthly
Laundry: In Unit
Lot Dimensions: Common
Parcel#: 14191150000000
Parking: Yes, Garage Owned, Detached, Garage
Pet Allowed: Cats OK, Dogs OK
Sewer: Public Sewer
Total Rooms: 7
Township: Lake View
Water: Lake Michigan

Room Information

Bonus Room: 11X10
Walk In Closet: 5X6
Deck: 22X64
Deck: 7X17
Walk In Closet: 5X6
Bedroom 2: 11X11
Bedroom 3: 10X11
Dining Room: COMBO
Kitchen: 11X20
Laundry: 5X6
Living Room: 13X20
Primary Bedroom: 12X13

Schools

Elementary School: Alexander Graham Elementary Scho
School District: District 299

Disclaimer: The accuracy of all information regardless of source, including but not limited to square footage and lot size, is deemed reliable but not guaranteed nor warranted and should be personally verified through personal inspection by and/or with the appropriate professionals.

Location

See details and scored characteristics about this location.

Listing Office: Jameson Sotheby's Intl Realty

Listing Office Phone: 312-751-0300



Listing data and photos distributed by MLSGRID
Member Participants (and their affiliated licensees, if applicable) shall indicate on their websites that IDX information is provided exclusively for consumers’ personal non-commercial use, that it may not be used for any purpose other than to identify prospective properties consumers may be interested in purchasing, that the data is deemed reliable but is not guaranteed by MLS GRID, and that the use of the MLS GRID Data may be subject to an end user license agreement prescribed by the Member Participant’s applicable MLS if any and as amended from time to time. MLS GRID may, at its discretion, require use of other disclaimers as necessary to protect Member Participant, and/or their MLS from liability.
Based on information submitted to the MLS GRID. All data is obtained from various sources and may not have been verified by broker or MLS GRID. Supplied Open House Information is subject to change without notice. All information should be independently reviewed and verified for accuracy. Properties may or may not be listed by the office/agent presenting the information.


Login to my Baird & Warner account

Pixel